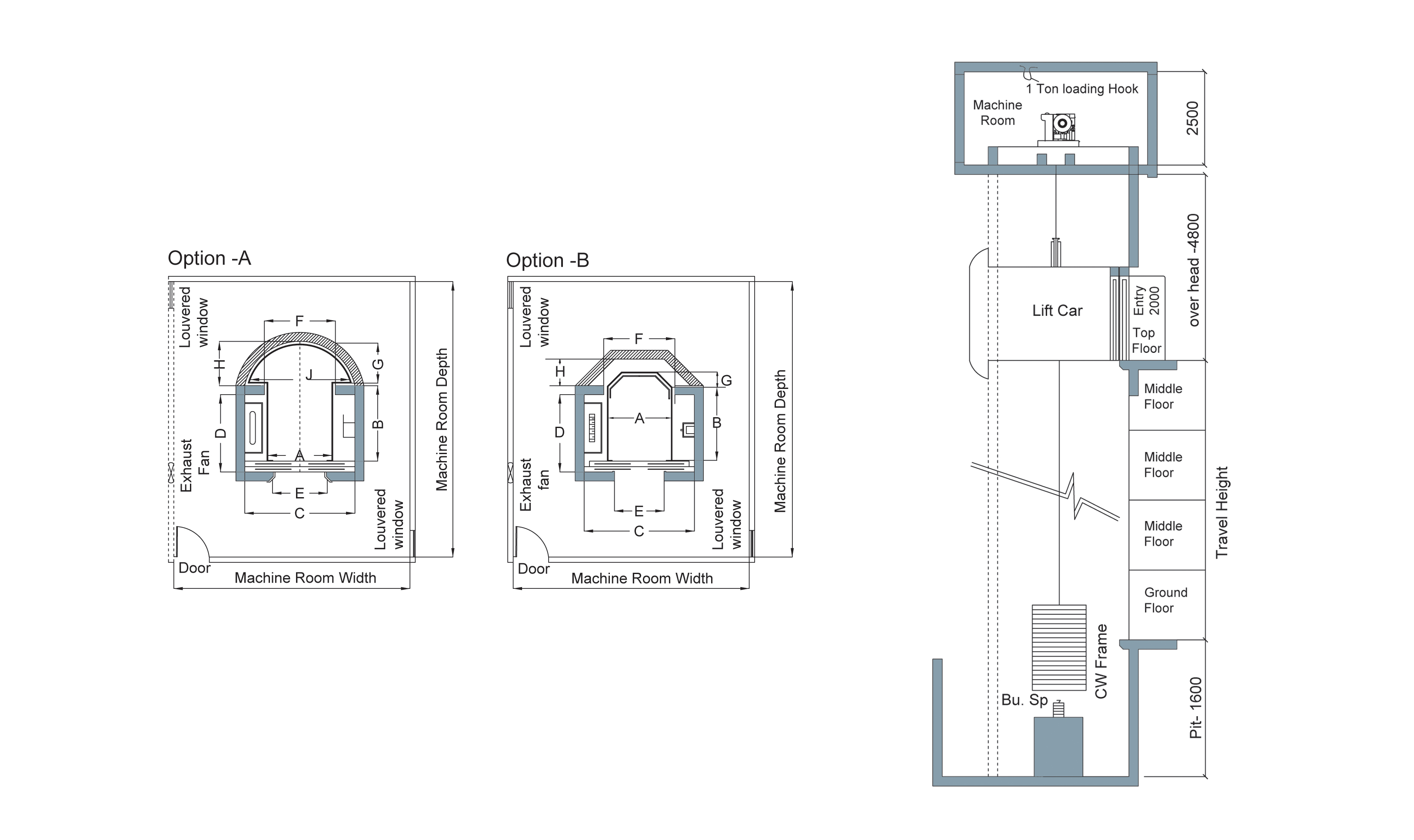
Capsule Elevator

The technology used in these lifts is Ultra Advance.

Capsule Elevator

  • These  lifts can be installed on the exterior face of the building or in the lobby.

  • The installation of  these lifts provides totally changed view to the building.

  • The technology used in these lifts is Ultra Advance.

  • The range of lifts is from 6 persons to 35 persons for a three - sided glass capsule.

  • 5 sided glass capsule is available for a minimum raise size of 13 persons.

  • Octagonal shaped lifts are also being designed.

  • Bottom lit marble floor ,bell shaped roofs and cabin exteriors can be provided.

  • One exclusive feature is that glass doors can also be provided.

  • When set in a glass capsule the beauty of the capsule is further enhanced.

  • The lifts can be traction machine based or hydraulic machine based depending on the machine room location.

  • Apart from the cabin all other specifications are the same as for  other passenger lifts.

Infrared door detector

We bringforth for our clients, a superior quality range of infrared door detectors that are installed at elevator entrance doors. These detectors  are integrated with sensors for ascertaining the people or goods coming into the lift. Offered in numerous specifications, these detectors are offered to our clients in innovative designs.

Various options are available
Speed1.00 to 1.5 mt / ps
Type of CarOne Side View / Three Side View / Half Round View.
Car Finish

Glass with MS Powder Coated Car.

Glass with Stainless Steel Hair line Finish Car.

Glass with Steel Designed & Steel Hair line Finish Car.

Door finish

MS Powder Coated Auto Car.

Stainless Steel Hair line Finish Auto Door.

Stainless Steel Designed Finish Auto Door.

Titanium Gold Designed Finish Auto Door.

Glass With Stainless Steel Framed Finish Auto Door.

Switch
Planels Button
Surface Micro Electro Button, Touch Button.
Switch
Planels Display
16m. USD
Value

Seven Segment Digital LED Display .

Digital Dot Matrix Display. LCD Display.

Get Our Detailed Brochure. Click Here