Hospial Elevator

Safety starts with you

Hospital Elevator

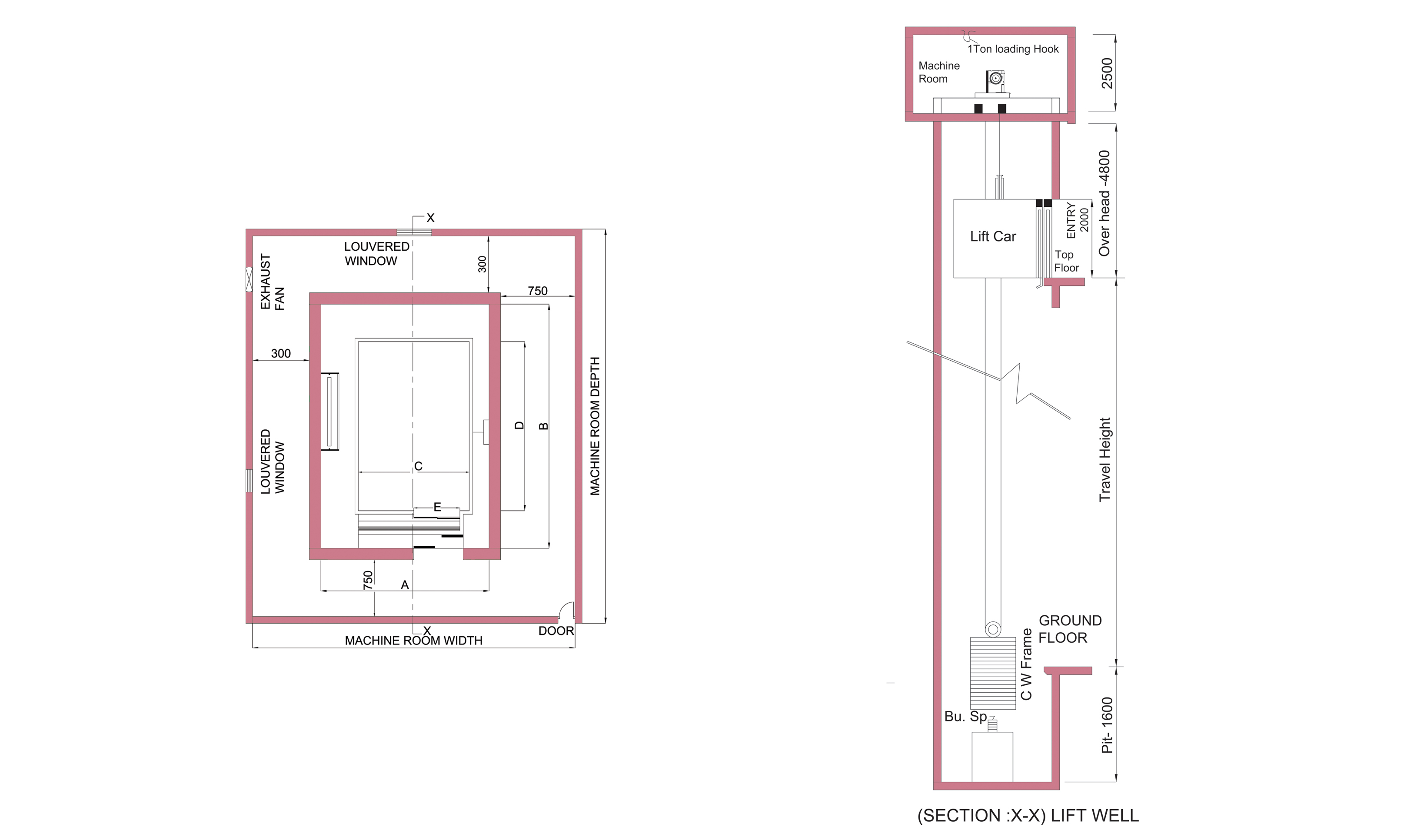
Hospital elevators are designed for the instant transfer of patients to the medical facilities in hospital. A wide range of car dimensions is available for the varying requirements of a modern hospital.

We  took  into  consideration all factors, involved  in  the transportation  of  patients,  to  design the most  reliable medical elevators for hospitals, nursing homes, clinics and other medical institutes.

Our medical elevators are exceptionally smooth and quiet in  heavy-duty  operation.  They   employ   sophisticated position measuring techniques to map the elevator shaft together with all floor levels. This ensures highly accurate leveling, for  safe and  easy  use.  This  is  particularly important for elderly  and  disabled  persons,  and  when loading  gurneys  and  wheelchairs.

Benefits & features

  • Corrosion-proof design can bear disinfectant used in healthcare facilities.

  • No electromagnetic disturbance to medical equipment.

  • Battery-powered emergency landing function ensures no patient is trapped ever.

  • VVVF drive system makes transportation smooth and safe.

  • Soft lighting in car makes patients feel calm and comfortable.

  • Spacious design and auxiliary COP make sure our medical elevator is accessible for all.

Various options are available
Speed1.00 to 1.5 mt / ps
Type of CarOne Side View / Three Side View / Half Round View.
Car Finish

Glass with MS Powder Coated Car.

Glass with Stainless Steel Hair line Finish Car.

Glass with Steel Designed & Steel Hair line Finish Car.

Door finish

MS Powder Coated Auto Car.

Stainless Steel Hair line Finish Auto Door.

Stainless Steel Designed Finish Auto Door.

Titanium Gold Designed Finish Auto Door.

Glass With Stainless Steel Framed Finish Auto Door.

Switch
Planels Button
Surface Micro Electro Button, Touch Button.
Switch
Planels Display
16m. USD
Value

Seven Segment Digital LED Display .

Digital Dot Matrix Display. LCD Display.

Get Our Detailed Brochure. Click Here